
Szacowany czas czytania: 3 minuty
Kluczowe wnioski:
Spis treści:
Deklaracja VAT-9M to po prostu formularz służący do rozliczenia podatku VAT w Polsce. Mówimy tu o najnowszej, 11. wersji, która obowiązuje od 1 kwietnia 2025 r. i dotyczy rozliczeń począwszy od marca 2025. Co ważne, ten dokument składa się tylko i wyłącznie przez Internet, na przykład przez system e-Deklaracje albo portal podatki.gov.pl. Zapomnij o wersji papierowej – takiej opcji nie ma.
Kto właściwie musi składać VAT-9M? Ten obowiązek dotyczy dość specyficznej grupy, o której mówi art. 99 ust. 9 ustawy o VAT. Chodzi głównie o tych podatników, którzy na co dzień nie wysyłają JPK_V7M ani JPK_V7K (czyli nie są czynnymi podatnikami VAT lub korzystają ze zwolnienia), ale dokonali czynności zrobili coś, które co wymagają rozliczenia VAT w Polsce oraz nie są z tytułu tych czynności zwolnieni z VAT. Dotyczy to także osób fizycznych bez działalności gospodarczej, jeśli kupiły coś, gdzie to one muszą rozliczyć VAT (np. przy imporcie usług). Kluczowe są tu transakcje, gdzie podatek rozlicza nabywca – przede wszystkim:
Co ważne, ten obowiązek pojawia się niezależnie od tego, jaki status VAT ma dana osoba czy firma w innych sprawach. Jeśli już wiesz, że musisz złożyć VAT-9M, pamiętaj o terminie: masz czas do 25. dnia miesiąca po miesiącu, w którym powstał obowiązek podatkowy. Czyli za transakcje marcowe składasz deklarację do 25 kwietnia. Jak to zrobić? Tylko elektronicznie, przez system e-Deklaracje lub portal podatki.gov.pl. Papierowa wersja odpada. Deklarację wysyłasz do urzędu skarbowego odpowiedniego dla:
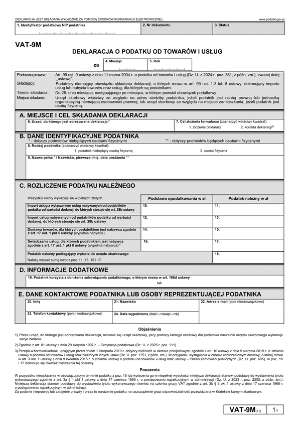
Sam formularz VAT-9M ma jasną strukturę. Musisz w nim podać swoje dane identyfikacyjne oraz informacje o transakcjach i należnym podatku. Główne części deklaracji to:
Wspomniana Część C jest kluczowa, bo to tu rozliczasz podatek. W polu 10 wpisujesz podstawę opodatkowania dla importu usług (ale bez tych z art. 28b ustawy o VAT, czyli np. telekomunikacyjnych czy elektronicznych dla osób prywatnych). Następnie w polu 11 podajesz kwotę należnego VAT, obliczoną według stawki obowiązującej w Polsce dla danej usługi – najczęściej będzie to podstawowe 23%.
Czym więc VAT-9M różni się od standardowych plików JPK_V7M (miesięczny) i JPK_V7K (kwartalny)? Głównie tym, kto je składa i co się w nich raportuje. JPK_V7 to standard dla większości aktywnych podatników VAT – rozliczają w nim cały VAT, należny i naliczony, ze wszystkich swoich działań. Z kolei VAT-9M jest tylko dla tych, którzy nie wysyłają JPK_V7, a muszą rozliczyć VAT jedynie z powodu konkretnych sytuacji, jak import usług czy transakcje z odwrotnym obciążeniem. Co ważne, w VAT-9M wykazuje się tylko podatek należny wynikający z tych właśnie zdarzeń.
Kto musi składać deklarację VAT-9M?
Deklarację VAT-9M składają osoby i firmy, które nie są czynnymi podatnikami VAT, ale dokonały transakcji podlegających opodatkowaniu VAT w Polsce, np. import usług.
Do kiedy należy złożyć deklarację VAT-9M (11)?
Deklarację VAT-9M (11) należy złożyć do 25. dnia miesiąca następującego po miesiącu, w którym powstał obowiązek podatkowy.
Czy deklarację VAT-9M można złożyć w formie papierowej?
Nie, deklarację VAT-9M można złożyć wyłącznie elektronicznie, przez system e-Deklaracje lub portal podatki.gov.pl.
Czym różni się VAT-9M od JPK_V7M?
VAT-9M jest przeznaczony dla podmiotów, które nie składają JPK_V7M, a muszą rozliczyć VAT z tytułu specyficznych transakcji, takich jak import usług.
Rozporządzenie Ministra Finansów z dnia 27 stycznia 2025 r. w sprawie wzorów deklaracji o podatku od towarów i usług od podmiotów innych niż zarejestrowane jako podatnicy VAT czynni (Dz.U. 2025 poz. 131)
PAMIĘTAJ! Gdy wypełnisz formularz - przeczytaj go uważnie w wersji ostatecznej lub skonsultuj się ze specjalistą! Udostępnione przez nas wzory druków, formularzy, pism, deklaracji lub umów należy zawsze właściwie przetworzyć, uzupełnić lub dopasować do swojej sytuacji.
Pamiętaj, że podpisując dokument kształtujesz nim swoje prawa lub obowiązki, zatem zachowaj należytą uwagę przy zmianach i jego wypełnianiu. Ze względu na niepowtarzalność każdej czynności, samodzielnie lub na podstawie opinii specjalisty musisz ocenić, czy wykorzystany formularz zastał zastosowany przez Ciebie odpowiednio do stanu faktycznego, prawnego lub zamierzonego celu.
Dołącz do programu resellerskiego i zostań specjalistą od przyjaznych formularzy, e-deklaracji i e-administracji, ponieważ fillup to formalności wypełnione.